설 계

배치도

ARRANGEMENT PLAN

구조해석

STRENGTH CALCULATION

3D 모델

3D MODEL

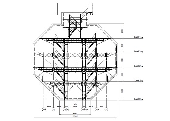
조립 및 해체 도면

ASSEMBLY & DISMANTLE DRAWING

일품도

PART DRAWING